• Kitchen with granite countertops, stainless steel appliances, and warm finishes at Lincoln School
  • One-bedroom apartment with exposed brick and garden-level patio at Lincoln School in downtown Madison
  • Unique one bedroom layout with exposed brick and open concept at Lincoln School apartment in downtown Madison

Lincoln School - Apartment 207

1 Bed / 1 Bath
605 Sq. Feet
$1575/month
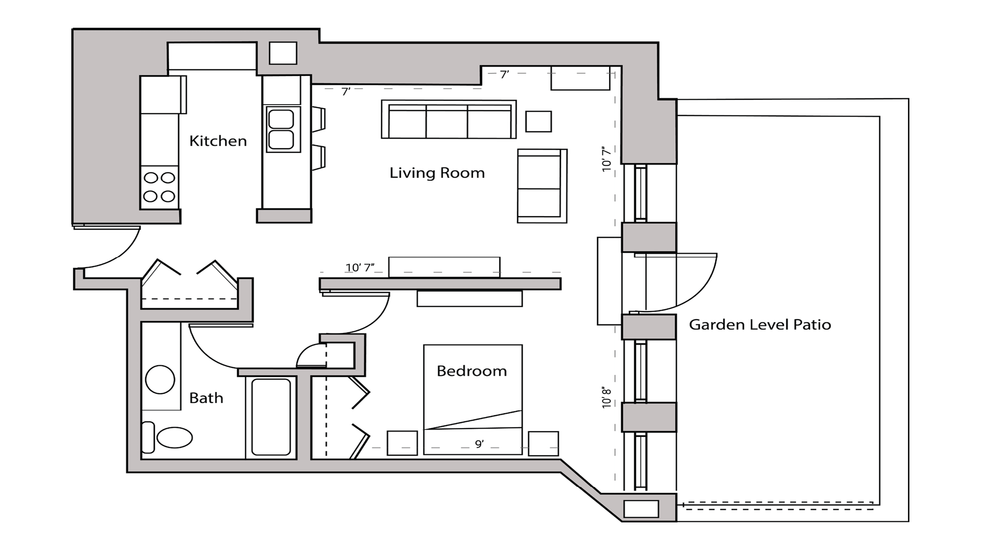
  • Floorplan
    Image
    ULI Lincoln School 207 - One Bedroom, One Bathroom Floor Plan
  • Virtual Tour
  • Floorplate
    Image
    Lincoln-School-207 Floorplate
  • Extras

    RENT INCLUDES:

    Water
    Sewer
    Trash Removal
    Storage |
    With Select Apartments

    ADDITIONAL EXPENSES:

    Underground Parking |
    $135/mo per stall
    Cat |
    $25/mo
    Dog |
    $50/mo | Please review pet policy
    Cable
    | Internet |
    Electric
    Heating
    Cooling
  • Pet Policy

    Bring Your Pet Home with ULI!

    At ULI, we know your pet is part of your family. That’s why we offer pet-friendly communities tailored to provide a comfortable and peaceful living experience for all. Here’s what you need to know:

    Pets Allowed: Cats and dogs.

    Pet Requirements: Pet photo, up-to-date rabies vaccination, and proof of spay/neuter, for dogs over 6 months.

    Pet Limitations: In our studio and one-bedroom apartments, you can have either one cat and one dog or up to two cats. In our two- and three-bedroom homes, you’re welcome to have one cat and one dog, up to two cats, or up to two dogs.

    Pet Fees: Cats | $25/mo - Dogs | $50/mo

    Dogs 6 months and under: Non-refundable $150 fee + $50/mo per dog *Proof of spayed or neutered required once 6 months old in order to remain approved at the community they are residing in.

    Review our full PET POLICY for details on breed restrictions, puppy guidelines, and other specifics.

  • Property Features
    Additional Storage
    Controlled Access
    Historic Property
    Indoor Bike Storage
    Shared Laundry Room
    Underground Parking
  • Apartment Features
    Bathtub
    Bi-fold Closet
    Blinds
    Cats Welcome
    Corner Unit
    Dishwasher
    Dogs Welcome
    Double Pane Windows
    Exposed Brick
    Garden-level Apartment
    Glass-top Electric Range
    Granite Countertops
    Linen Closet
    Microwave
    No Carpet
    No In-unit Laundry
    Onsite Shared Laundry Room
    Patio
    Solid Surface Flooring
    Southeast Facing
    Tile Flooring in Bathrooms
Madison, WI skyline

Lincoln School
Apartment 207

1 Bed / 1 Bath
605 Sq. Feet
$1575/month

Available Apartments at Lincoln School

  • Image
    ULI Lincoln School 207 - One Bedroom, One Bathroom Floor Plan
    Apartment 207
    Available Now
    1 Bed / 1 Bath
    605 Sq. Feet
    $1575/month
    Patio
  • Image
    ULI Lincoln School 405 - One Bedroom, One Bathroom Floor Plan
    Apartment 405
    Available 4/7/2026
    1 Bed / 1 Bath
    605 Sq. Feet
    $1660/month
  • Madison, Wisconsin
    Looking for more?
    Explore available apartments across all ULI communities.
Image
SEVEN27 and Nine Line at The Yards properties shown from over Monona Bay

Follow us on social media for exciting giveaways, resident events, and local happenings. Stay in the loop with community updates and fun ways to connect with your neighbors!

Image
Resident Benefit at Bandit Coffee and Tacos in downtown Madison

Enjoy exclusive benefits designed to make life easier and more rewarding. From local discounts to special resident events, explore all the perks that come with calling our communities home!

Image
ULI 50 Year anniversary team photo at The Capitol Square in Madison Wisconsin

Get the latest updates on our team, downtown events, and behind the scenes stories. See how we’re making an impact and celebrating the people who make ULI great!